Send Email

rick@msteelds.com
danny@msteelds.com

Working Hours

Mon-Sat : 9.30am to 7.30pm

Have any Questions?

+91 99165 42340

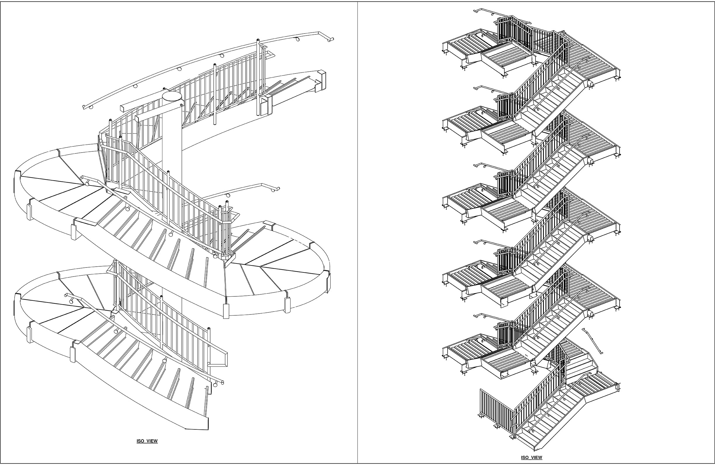
single-01
ABOUT MSTEEL

Steel Detailing Services

MSteel Detailing Services provides industry leading steel detailing services with over 20 years experience. MSteel is an innovative Structural Steel Detailing company committed to providing quality steel detailing services and Connection Design to the commercial and industrial industry.

Why Choose Us

  • We strive for excellence to meet our clients needs
  • We provide high-quality steel design and connection design services.
  • MSteel Delivers Clean, Accurate Shop and Erection Drawings
  • Quick turn-around
  • Competitive rates
  • Reasonable change order prices

2016

Company Established

36

Tursted Clients

1061

Finished Projects

OUR PROJECTS

MSTEEL Gives Production From Every Angle

bg-image
BEST SERVICES

An innovative Structural Steel Detailing company

MSteel Detailing Services provides industry leading steel detailing services with over 20 years experience to providing quality steel detailing services.

Steel Detailing
96%
Material Take-off
91%
Connection Design and Stamping
91%
single-01
MSTEEL

Our Software Partners

image
image
image
image